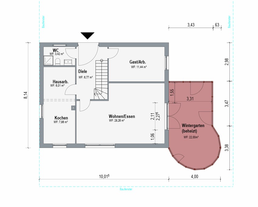
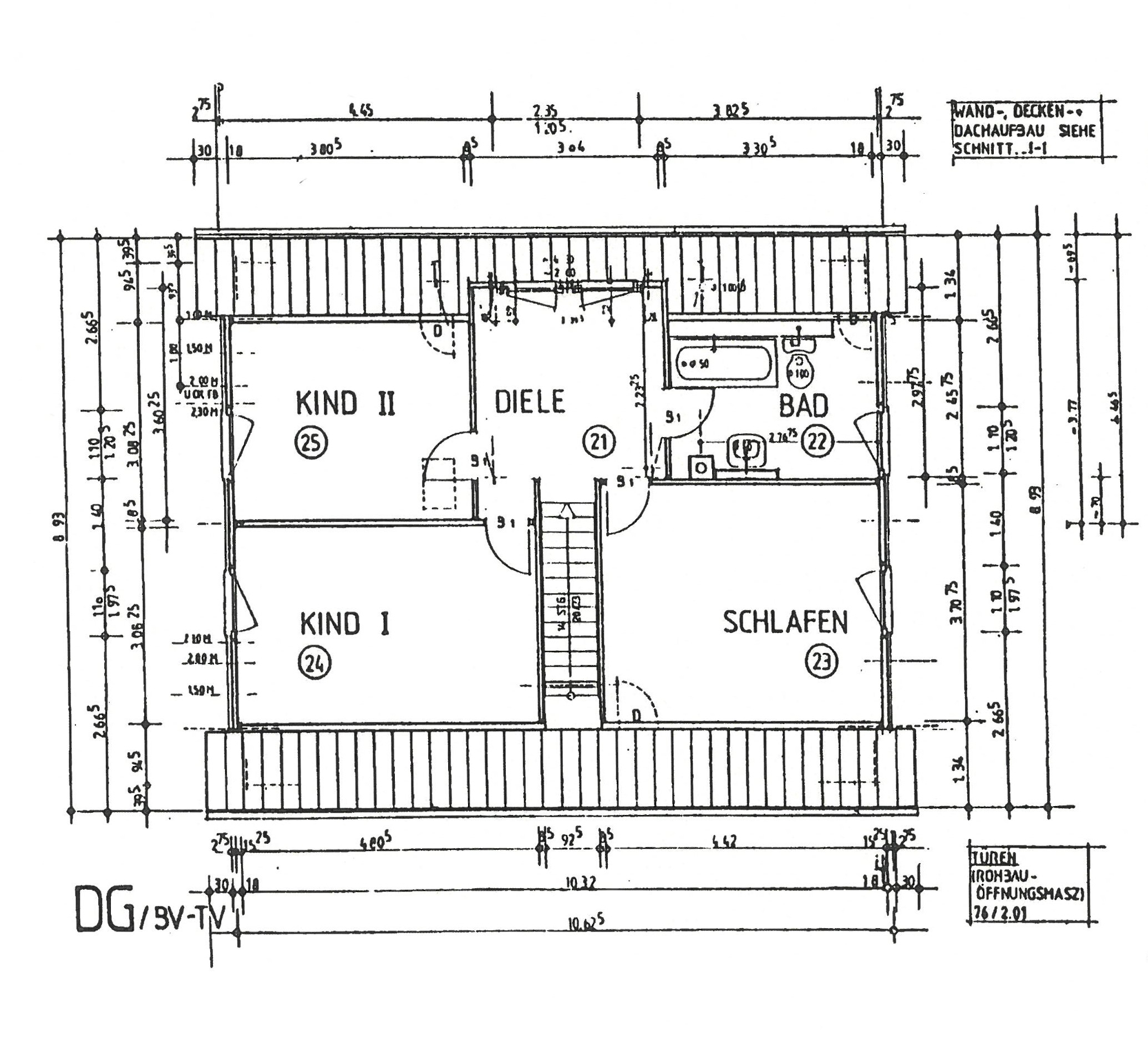
Entdecken Sie Ihr neues Zuhause in diesem charmanten Einfamilienhaus zum Kauf. Mit einer Wohnfläche von 138,82 m² bietet dieses Haus großzügigen Platz für Ihre Familie. Die Wohnfläche verteilt sich auf 85,77 m² im Erdgeschoss und 53,05 m² im Dachgeschoss.
Besonders hervorzuheben ist der wunderschöne Wintergarten mit einer Größe von 22 m², der mit einer Fußbodenheizung ausgestattet ist und Ihnen das ganze Jahr über ein gemütliches Ambiente bietet.
Das gepflegte Grundstück umfasst 652 m² und bietet ausreichend Platz für alle Ihre Gartenträume. Die letzte Modernisierung erfolgte im Jahr 1999 mit dem Austausch der Ölheizung, seitdem wurde das Haus mit Liebe und Sorgfalt gepflegt.
Die Böden sind mit einer Mischung aus Parkett, Teppichboden und Fliesen ausgelegt, die eine warme und einladende Atmosphäre schaffen.
Zum Haus gehört eine Garage mit zusätzlichem Abstellraum, ein Vollkeller, ein Gäste-WC und eine Einbauküche, die im Kaufpreis enthalten ist. Der schön angelegte Garten lädt zum Entspannen und Genießen der freien Natur ein.
Dieses Einfamilienhaus befindet sich in einer ruhigen und beliebten Wohngegend in Bielefeld und bietet Ihnen und Ihrer Familie ein Zuhause, in dem Sie sich wohlfühlen werden.
Das freistehende Einfamilienhaus aus dem Jahr 1987 überzeugt durch eine solide und zugleich vielseitige Bauweise. Der Vollkeller wurde in massiver Bauweise errichtet und bietet neben reichlich Stauraum zusätzlichen Wohnkomfort: Ein zeitlos weiß gefliestes Badezimmer mit WC, Dusche und Handwaschbecken sowie ein beheizter, flexibel nutzbarer Raum – ideal als Büro, Hobbyraum oder Gästezimmer.
Erd- und Dachgeschoss wurden in Holzständerbauweise gefertigt, was für ein angenehmes Wohnklima sorgt. Im Erdgeschoss befindet sich der großzügige Wohn- und Essbereich, der durch seine offene Gestaltung besticht und direkten Zugang zum beheizten Wintergarten bietet – perfekt für entspannte Stunden zu jeder Jahreszeit. Ein Gäste-WC mit ebenerdiger Dusche rundet das Raumangebot auf dieser Etage komfortabel ab.
Die Beheizung des Hauses erfolgt über eine Ölheizung aus dem Jahr 1999.
Der liebevoll angelegte Garten rund um das Haus lädt zum Verweilen ein. Gepflegte Schotterwege führen durch das Grundstück und verleihen der Außenanlage eine klare Struktur sowie einen natürlichen Charme. Seitlich neben dem Haus befindet sich ein idyllischer kleiner Teich, der zusammen mit einem gemütlichen Sonnenplatz eine entspannende Rückzugsoase bietet. Hier lassen sich ruhige Momente inmitten der Natur genießen.
Entdecken Sie Ihre Traumimmobilie in der idyllischen Lage von Bielefeld-Senne, direkt unterhalb des Senner Hellwegs. Diese begehrte Wohngegend bietet die perfekte Symbiose aus Naturnähe und urbaner Anbindung. Hier genießen Sie die Ruhe und den Charme eines ländlich geprägten Umfelds, während die Annehmlichkeiten der Stadt schnell erreichbar sind.
- **Naturverbundenes Wohnen**: Umgeben von grünen Wäldern und weitläufigen Feldern, bietet die Umgebung ideale Bedingungen für Spaziergänge, Radtouren und Outdoor-Aktivitäten.
- **Gute Verkehrsanbindung**: Trotz der naturnahen Lage sind Sie nur wenige Minuten von wichtigen Verkehrsadern entfernt. Die Anbindung an das öffentliche Nahverkehrsnetz sowie die Nähe zur Autobahn ermöglichen eine schnelle und unkomplizierte Erreichbarkeit von Bielefeld und Umgebung.
- **Familienfreundliche Nachbarschaft**: Bielefeld-Senne ist bekannt für seine familienfreundliche Atmosphäre. Hier finden Sie ausgezeichnete Schulen, Kindergärten und Freizeiteinrichtungen, die den Alltag mit Kindern erleichtern.
- **Einkaufs- und Gastronomievielfalt**: Im nahegelegenen Senner Hellweg finden Sie eine Vielzahl an Einkaufsmöglichkeiten, Cafés und Restaurants, die für jeden Geschmack das Richtige bieten.
- **Kultur und Freizeit**: Nutzen Sie die Nähe zu Bielefeld, um das kulturelle Angebot der Stadt zu genießen. Von Museen und Theatern bis hin zu Sportveranstaltungen – hier bleibt keine Wunsch unerfüllt.
Erleben Sie das Beste aus beiden Welten: Naturverbundenheit und urbanes Leben in einer der beliebtesten Lagen von Bielefeld-Senne.
Die Übergabe der Immobilie erfolgt nach Absprache.
Jetzt Exposé anfordern
Fordern Sie jetzt das Exposé online über das Kontaktformular an. Sie erhalten das Exposé zeitnah per E-Mail. Bitte überprüfen Sie ggfs. auch Ihren Spam-Ordner.
Marcel Hokamp
















.jpg)






